Bâtiment commercial- idéalement situé

Référence bc-poligny Catégorie

Prix du bien :

240 000,00 

Informations complémentaires

Nb de pièce(s) :

Terrain :

Surface bien :

Localisation :

DPE:

GES :

Types de biens

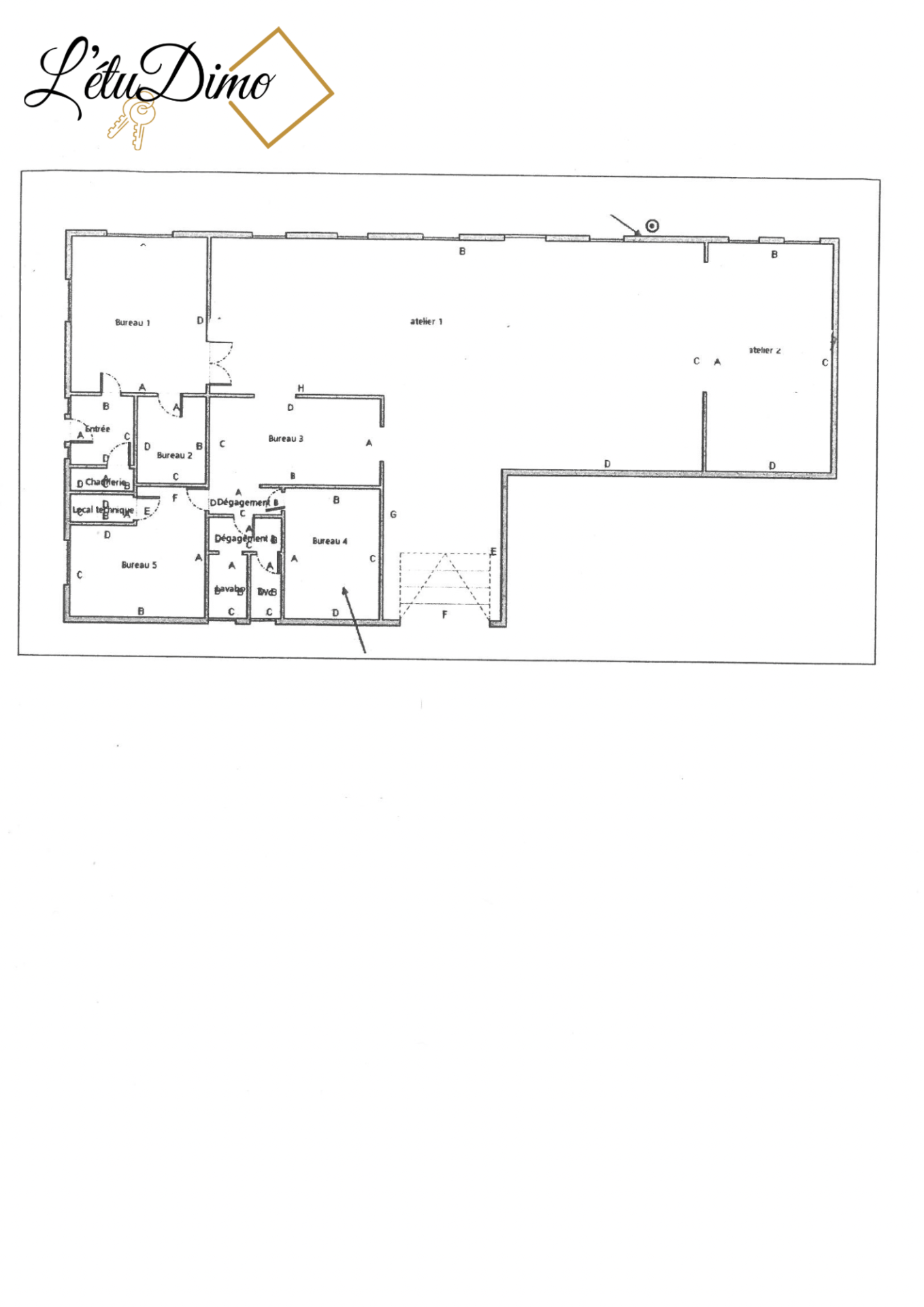
Votre agence L’EtuDimo vous propose de découvrir ce bâtiment commercial de 307 m² sur une parcelle de 522 m² offre de nombreuses opportunités pour vos projets professionnels grâce à son aménagement intérieur facilement modulable et sa localisation stratégique, située sur un axe passant de la commune de Poligny

Il comprend une entrée avec escalier d’accès, cinq bureaux lumineux, un atelier très spacieux communiquant avec l’extérieur par une porte de garage. L’ensemble bénéficie d’un aménagement intérieur facilement modulable, ainsi que de places de stationnement privatives et d’un terrain plat à l’arrière.

Avec sa localisation stratégique et ses multiples atouts, ce bien est une véritable occasion à saisir pour les entrepreneurs et professionnels en quête de nouveaux locaux.

✅ Infos pratiques :

  • Chauffage au gaz avec chaudière individuelle
  • Parking privatif
  • Charpente et couverture : parfait état
  • Électricité aux normes
  • DPE : C | GES : C (diagnostics établis le 15/11/2023)
  • Rentabilité locative mensuel estimée : Entre 1500 € et 1700 €

 

N’hésitez pas à nous contacter pour plus d’informations et visites

BESOIN

D’INFORMATIONS

SUPPLÉMENTAIRES ?

Nos constructions clef en main vous inspirent et vous aident à concrétiser votre projet de construction. Conçus pour répondre aux besoins de votre famille chaque maison est personnalisable à votre convenance pour correspondre au mieux à votre demande.